法拉盛单边两家庭出售$138万近金城发,交通便利,5分钟步行至小学.投资自住皆宜. lot:26x100 房屋面积2160sf,地税$8500
2个独立停车位。
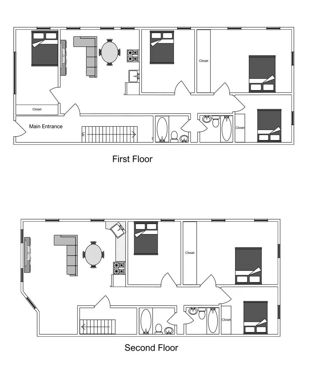
一楼:4房2浴1厅
二楼:3房2浴1厅
unfinished Basement
Add: 14623 Jasmine Ave Flushing
347 350 0059


免责声明:本文由用户或第三方投稿,仅代表作者个人观点,不代表本站立场。所有内容仅供参考,本站不对内容的准确性、完整性承担法律责任。如发现侵权或虚假信息,请及时联系我们处理。
Disclaimer: This article is submitted by users or third parties. The views expressed do not represent our website's position. If any content infringes your rights, please contact us for prompt removal.


